1 bedroom apartment for rent in Milano
English
Italiano
1,140 € / month

1 bedroom apartment for rent in Milano

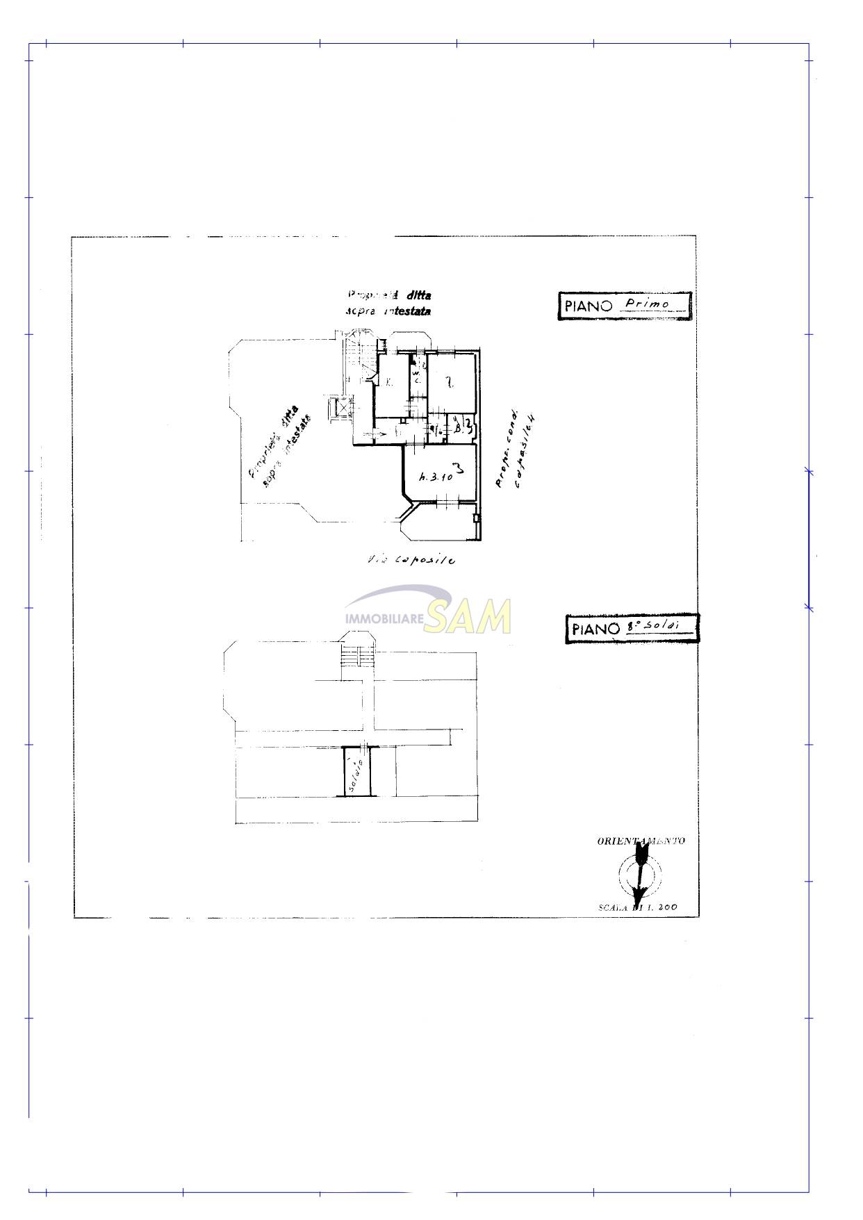
1 bedroom apartment for rent • Milano - Via Caposile, 8
Primal Features
Code
CAP8
City
Milano
Category
1 bedroom apartment
Price
1,140 € / month
Expanses
3,120 € / year
Locals
2
Bedrooms
1
Bathrooms
1
Sqm
75
Garages
1
Sqm garage
14
Balconies
1
Terraces
1
sqm Terrace
15
Floor
1
Energetic class
G
Life Style
Quiet
Property Conditions
Perfect Conditions
Rank
Elegant
Free Sides
2
Garden
Common
Furniture
Not Furnished
Kitchen
Eat-In Kitchen
Heating
Central
Heating Type
Boiler
Type of heating system
Radiator heating
Energy source
Natural Gas Heating
Cooling
Centralized
Fixtures
Wooden double glazed
Floors Living Room
Marble
Floors Bedrooms
Parquet
Floors Kitchen
Ceramic
Floors Bathroom
Ceramic
Caution
Three Months
Advance Rent
One Month
Type of Contract
4+4 Years
Registr. Type
Coupon dry

Accessories: Air Conditioning, Elevator, Double Glazing, Armored door, Caretaker / Guardian, Closet, Electric shutters

Map
Via Caposile 8, Milano (MI)
Cookie preference